Design Your Home at Just Rs.15/- per sq.ft
Design Your Home at Just Rs.15/- per sq.ft
2D Home Interior Design Services:
Paam Construction has been very innovative in providing all sorts of interior design services. We provide high-quality 2D Design service with a wonderful outline. Our 2D design service is perfect for room interiors, office interiors, and any other areas. Our professional CAD draftsmen give the perfect 2D floor plans within a committed time frame. We provide the best possible quality control solution in the 2D design service. The 2D art is just like a real texture which creates a textured surface which can be touchable. The real texture is created when textured medium, scratches, paints and different kinds of other mediums are used.
Your home is your sanctuary – a space where you unwind, relax, and create memories with loved ones. As such, it’s important to ensure your living space is not only beautiful, but functional too. If you’re considering a home renovation or redesign, you may be wondering how to bring your vision to life. This is where 2D Home Interior Design Services can help.
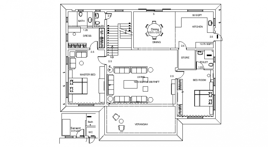
2D Home Interior Design Services is a professional service that creates 2D floor plans, elevations, and 3D visualizations of your living space. The service can be tailored to your specific requirements, whether you’re looking to refresh a single room or overhaul your entire home.
2D Home Interior Design Services can help transform your living space into a beautiful and functional haven. By working with Paam Construction, you can create a design that reflects your personal style and preferences while ensuring that your living space is practical and functional. With a collaborative approach and high-quality designs, 2D Home Interior Design Services is a smart investment for any homeowner looking to elevate their living space.
2D Home Interior Design:
- Interior designer visits your place.
- Takes measurements & requirements.
- Understands your budget.
- Consults your queries
- We prepare 2d design for ease in execution.
Benefits of 2D Home Interior Design Services
Customized Design: 2D Home Interior Design Services are tailored to your specific needs and preferences. This means that the final design will reflect your personal style and taste, making your living space truly unique.
Time and Cost-Efficient: 2D Home Interior Design Services can help you save time and money by providing a detailed plan upfront. This ensures that you don’t waste time and money on unnecessary renovations or redesigns.
Improved Functionality: The design created by 2D Home Interior Design Services takes into consideration the functionality of your living space. This means that your space will not only look beautiful, but it will also be practical and functional.
Increased Property Value: A well-designed living space can significantly increase the value of your property. If you’re planning to sell your home in the future, investing in 2D Home Interior Design Services can be a smart move.
How does our 2D Home Interior Design Services work?
Our 2D Home Interior Design Services process typically involves the following steps:
Initial Consultation: Our interior designer will meet with you to discuss your vision and requirements for the living space. This will help them get a better understanding of your personal style and preferences.
Design Creation: Based on the consultation, our designer will create a detailed 2D floor plan, elevations, and 3D visualizations of your living space. This will help you visualize the final result and make any necessary changes before the construction or renovation process begins.
Implementation: Once the design has been finalized, the construction or renovation process can begin. Our interior designer also help you with the implementation process, ensuring that the final result matches the initial design.
What to expect from Paam Construction 2D Home Interior Design Services?
When working with our 2D Home Interior Design Services, you can expect the following:
A personalized approach: Our designers will work closely with you to understand your vision and create a design that meets your specific needs and preferences.
High-quality designs: 2D Home Interior Design Services use advanced software and tools to create detailed floor plans, elevations, and 3D visualizations of your living space. This ensures that you receive high-quality designs that accurately reflect your vision.
Timely delivery: Our Professional designers understand the importance of timely delivery and will work with you to create a realistic timeline for the project.
Collaboration: Throughout our design process, you’ll have the opportunity to provide feedback and make changes. This collaborative approach ensures that you’re happy with the final result.
2D Home Interior Design Services
-
₹. 15 per square feet*
-
₹. 1500/ Visiting Fees*
-
2 Revisions
-
5 Working Days Delivery
Frequently Asked Questions on 2D Design Services
It’s okay to have questions, because we’ve got answers!
The cost of 2D Home Interior Design Services varies depending on the scope of the project. But at Paam Construction we charge ₹. 15 per square feet*.
The timeline for 2D Home Interior Design Services varies depending on the scope of the project, but we at Paam Construction usually, deliver 2D Home Interior Design Services in 5 working days.
In 2D Home Interior Design Services you will be getting technical drawings like – floor plan, furniture layout, false ceiling plan, electrical legend & Elevations.
